中古一戸建て 徳島市八万町弐丈
所在地
徳島市八万町弐丈
450万円
21.56坪
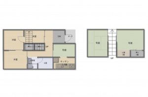
5DK
土地面積はコンパクトですが5DKとゆとりの間取り!
物件概要
- 交通
-
牟岐線 文化の森駅 まで 徒歩8分
牟岐線 二軒屋駅 まで 徒歩21分
- 接道状況
- 南東側 私道4m
- 土地面積
- 公簿 109.67㎡ (33.17坪)
- 建物面積
- 71.29㎡ (21.56坪)
- 築年数
-
1978年
(昭和53)
9月
築47年 - 建ぺい率
- 60%
- 容積率
- 200%
- 土地権利
- 所有権
- 構造および階数
- 木造 地上2階建
- 小学校区
- 八万南
- 中学校区
- 八万 (1456m)
- 私道負担
- 地目
- 宅地
- 現況
- 居住中
- 引渡時期
- 相談
- 駐車場
- 上水道
- 下水道
- ガス
- 都市計画
- 市街化区域
- 用途地域
- 1種住居
- 設備・条件
- 側溝、2口コンロ、クローゼット、エアコン、プロパンガス、上水道、浄化槽
- 備考
- 取引態様
- 仲介

