中古一戸建て 徳島市八万町橋本
所在地
      徳島市八万町橋本
    
                  2,580万円
              
      
                                            47.19坪
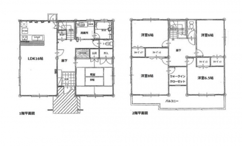
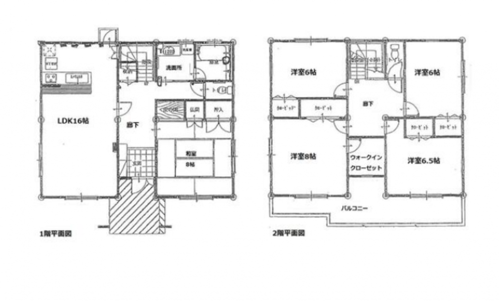
                                      5LDK
                                    
    周辺環境も良く生活しやすい地域!5LDKでゆとりのある広々した間取り!
物件概要
- 交通
 - 
  
牟岐線 文化の森駅 まで 徒歩20分
 - 土地面積
 - 198.35㎡ (60.00坪)
 - 建物面積
 - 156.00㎡ (47.19坪)
 - 築年数
 - 
  2006年
                          (平成18)
                          3月
                
                  
築19年 - 建ぺい率
 - 60%
 - 容積率
 - 200%
 - 土地権利
 - 所有権
 - 構造および階数
 - 木造 地上2階建
 - 小学校区
 - 八万南
 - 中学校区
 - 八万
 - 私道負担
 - 地目
 - 宅地
 - 現況
 - 空
 - 引渡時期
 - 相談
 - 駐車場
 - 有
 - 上水道
 - 下水道
 - ガス
 - 都市計画
 - 市街化区域
 - 用途地域
 - 設備・条件
 - 側溝、システムキッチン、食器洗浄乾燥機、IHクッキングヒーター、シャンプードレッサー、洗浄便座、浴室乾燥機、追い焚き、ウォークインクローゼット、モニタ付インターホン、床下収納、トイレ2箇所、エアコン、収納スペース、照明器具、ルーフバルコニー、浄化槽
 - 備考
 - 取引態様
 - 仲介
 
            
            
            
            
            
            
            
            
            
            
            
            
            
            
            
            
            
            
            
            
            
            
            
            
          
          
          
          
          
          
          
          
          
          
          
          
          
          
          
          
          
          
          
          
          
          
          
          
                            
                            
                            
                            
                  
                      
